Objekt

Ort
90489
 
Nürnberg
Wohnfläche
116
 m²
Verkaufsfläche
 m²
Nutzfläche
 m²
Vermietbare Fläche
 m²
Lagerfläche
 m²
Gastrofläche
 m²
Bürofläche
 m²
Grundstückfläche
 m²
Gesamtfläche
 m²
Zimmer
3
Baujahr
2013
Kaufpreis
620000,00
 €
Courtage
3,57% Maklercourtage vom Kaufpreis inkl. Mwst.
Kaltmiete
 €
Nebenkosten
 €
Verfügbar ab
01.05.2026

Ihr Ansprechpartner

EURAG GmbH
Telefonnummer
Faxnummer
+49 911 3073 450
E-Mail-Adresse
Anschrift
Fichtestraße 26
90489, Nürnberg
Anbieter kontaktieren
Exposē herunterladen
Objekt-Nr.:
5457

N-Gärten b. Wöhrd: Edle 3-Zi-Whg im Loftstil (2.OG m.L.), Parkett, EBK, Loggia, SP

Objektbeschreibung

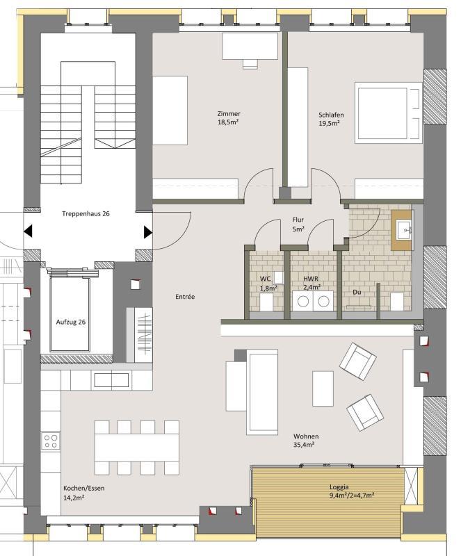
Edle Wohnung im Loftstil (Deckenhöhe ca. 2,70 m) mit 3 Zimmern verteilt auf ca. 116 m² Wohnfläche im 2. OG mit Lift in einem sehr gepflegten, neu sanierten, ehemaligen Fabrikgebäude. Die Wohnung verfügt über eine Loggia (Ausrichtung: gen West) Die Einbauküche in der Wohnung wurde 2014 komplett neu eingebaut und ist im Kaufpreis enthalten (Neuwert ca. EUR 16.000,-) Ein Carport-Stellplatz gehört zur Wohnung und wird mitverkauft ( Wert EUR 30.000,-- bereits im Kaufpreis enthalten) Ausstattung: - Alle Wohnräume mit hochwertigen Parkettböden ausgestattet (Ausführung: Eiche) - Küche, Bad und Gäste-WC mit großen, edlen Wand- & Bodenfliesen ausgestattet - Offene Wohnküche mit großzügigem Essbereich mit Einbauküche - Duschbad mit bodentiefer Dusche, Waschbecken und WC - Gäste-WC mit Waschbecken, Unterschrank und Spiegel - Hauswirtschaftsraum für Waschmaschine & Trockner - Fensterelemente & Fenstertüren: Holzfenster RAL gütegeprüft mit 3-fach Isolierverglasung mit elektr. Rollläden (Außen-Alu-Raffstore) - SAT-Anlage - Gegensprechanlage mit Video - Kellerabteil - Integrierte Beleuchtung im Flur, Bad und Schlafzimmer vorhanden - Fußbodenheizung in der ganzen Wohnung - Pellet-Zentralheizung (kfW-Standard: Effizienzhaus 70) Die derzeitigen Mieter werden zum 01.05.2026 ausziehen. Nebenkosten (Wohngeld) mtl.: - ca. EUR 260,- / Monat Kaltnebenkosten (z.B. Müllabfuhr, Straßenreinigung, Hausmeisterservice, Kabelanschluss etc.) - ca. EUR 30,- / Monat Verwaltungsgebühren - ca. EUR 38,- / Monat Instandhaltungs-Rücklage - ca. EUR 132,- / Monat Heizung, Wasser - Gesamt: EUR 460,--(Umlagefähig: EUR 311,- Nicht umlagefähig: EUR 149,-) Die Instandhaltungs-Rücklage für das Gesamtanwesen belaufen sich derzeit auf ca. EUR 109.000,-- (Stand 31.12.2024) WEG-Protokolle auf Anfrage erhältlich

Lage

Die Wohnung befindet sich im beliebten und zentralen Stadtteil Garten b. Wöhrd. Öffentliche Verkehrsmittel (Bus, U-Bahn, Straßenbahn) in Lauflage. Ärztliche Versorgung, Schulen, Kindergärten sowie sämtliche Einkaufsmöglichlichkeiten sind bequem erreichbar.

Energiewerte

Energiebedarf
Energieeffizienklasse
E-Ausweis Art
VERBRAUCH
Energiekennwert
98,10
Energieeffizienzklasse
C
Primärenergieträger
Pellets

Objektanfrage

Thank you! Your submission has been received!
Oops! Something went wrong while submitting the form.
Mieterselbstauskunft
No items found.