Objekt

Ort
90547
 
Stein
Wohnfläche
190
 m²
Verkaufsfläche
 m²
Nutzfläche
30
 m²
Vermietbare Fläche
 m²
Lagerfläche
 m²
Gastrofläche
 m²
Bürofläche
 m²
Grundstückfläche
380
 m²
Gesamtfläche
 m²
Zimmer
7
Baujahr
1978
Kaufpreis
 €
Courtage
Kaltmiete
1800,00
 €
Nebenkosten
450,00
 €
Verfügbar ab
Keine Angabe

Ihr Ansprechpartner

EURAG GmbH
Telefonnummer
Faxnummer
+49 911 3073 450
E-Mail-Adresse
Anschrift
Fichtestraße 26
90489, Nürnberg
Anbieter kontaktieren
Exposē herunterladen
Objekt-Nr.:
5475

FÜ-Stein: Wohnen und Arbeiten - 5 Zi-EG Whg mit Garten + Souterrain mit 2-Zi, Garage

Objektbeschreibung

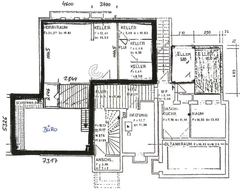
Besondere Immobilie mit vielfältiger Nutzungsmöglichkeit: 7-Zimmer Wohnung (EG und Souterrain) 5-Zimmer Wohnung (EG) und Büro im Souterrain 5-Zimmer Wohnung (EG) und Einliegerwohnung im Souterrain EG: 5 Zimmer, Küche, Bad, WC und Flur - ca. 125 m² ST: 2 Zimmer, Duschbad (ca. 65 m²), Kellerräume (ca. 30 m² Nutzfläche) Der Garten des Hauses gehört zu der Wohnung und ist ca. 380 m² groß (Alleinige Nutzung) Die Wohnung verfügt über eine Garage mit angrenzendem Geräteraum, diese ist für monatlich EUR 50,-- zzgl. zur Wohnungskaltmiete anzumieten. Besonderheit der Wohnung ist die zusätzliche Fläche die im Souterrain zur Verfügung steht. Die Räumlichkeiten sind sowohl über eine Wendeltreppe innerhalb der Wohnung, also auch über einen separaten Zugang über den Garten zu begehen. Ausstattung: - Wohnräume mit Parkettboden ausgestattet - Badezimmer und WC gefliest - Küche mit Fenster - Tageslicht-Badezimmer mit Badewanne, separater Dusche, Waschbecken und WC - separates Gäste WC - Kaminofen im Wohnzimmer - großzügige Terrasse, teils überdacht - teils integrierte Deckenbeleuchtung (Deckenspots) - Fenster teils mit elektrischen Rollläden und Einbruchschutz - Öl-Zentralheizung Die Nebenkosten in Höhe von ca. EUR 450,- monatlich beinhalten einen Heizkostenabschlag, jedoch keinen Abschlag für Strom. Die Anmeldung (Strom) muss eigenständig beim örtlichen Energieversorger erfolgen, die Abschlagszahlungen erfolgen direkt mit dem Energieversorger.

Lage

Die Immobilie befindet sich in Nürnberg, Ortsteil Stein. Stein liegt im Ballungsraum Nürnberg/Fürth direkt an der Bundesstraße 14 und zeichnet sich durch einen hohen Freizeit- und Erholungswert aus. Ländliches Umland auf der einen Seite, die angrenzenden Großstädte Fürth und Nürnberg auf der anderen Seite. Über den in 2 km Entfernung liegenden Autobahnzubringer ist Stein angebunden an das überregionale Verkehrsnetz mit den Bundesautobahnen (A6 / A9 / A3) Der Hauptbahnhof in Nürnberg ist mit den öffentlichen Verkehrsmitteln in 20 Minuten erreichbar. Die U-Bahnstation Nbg-Röthenbach befindet sich direkt vor den Toren der Stadt und wird mit Bussen alle 5 - 10 Minuten angefahren. Alle Geschäfte des täglichen Bedarfs, sowie Kindergärten, Schulen, Apotheken, Ärzte, Banken und Einkaufsmöglichkeiten sind vorhanden.

Energiewerte

Energiebedarf
Energieeffizienklasse
E-Ausweis Art
VERBRAUCH
Energiekennwert
182,50
Energieeffizienzklasse
F
Primärenergieträger
Öl

Objektanfrage

Thank you! Your submission has been received!
Oops! Something went wrong while submitting the form.
Mieterselbstauskunft
No items found.